search
STRUCTURE 2 TOURS avec Toboggan
Référence : SUN-005-HRC
Catégorie : Structures de jeux pour aires de jeux pour enfants

Structure avec des poteaux en HRC* imputrescibles
*HRC : Husk Rice Composit garantie 25 ans contre la putréfaction

Fiche technique

Structure porteuse
HRC
Autres pièces
Tubes en acier inox 304 ø42mm – Cordage armé ø16mm
Nombre d’utilisateurs
12
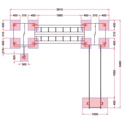
Espace minimum
8 m x 5.86 m
Tranche d'âge
de 5 à 12 ans
Les planchers
Panneaux phénoliques ou PEHD antidérapants
Panneaux d'habillage
Panneaux en PEHD 15 mm
Hauteur de chute
1.30 m
Normes
UNE-EN 1176-1: 2018 UNE-EN 1176-3: 2018

Ensemble composé de deux tours, avec un panneau d'escalade en polyéthylène, une nouvelle échelle de grimpe, un toboggan de sortie, une passerelle et une bar de pompier.
chat Commentaires (0)