search
STRUCTURE de jeux 1 TOUR avec 1 Toboggan Inox
Référence : LOR10901
Catégorie : Robin'Inox

Poteaux inox RONDS Ø76.1mm

Plancher tôle INOX larmé

Habillage de Panneaux Robinier ep 21mm

Structure Inox Garantie 25 ans

Métallerie et visserie 100% INOX

Fiche technique

Structure porteuse
acier inox 304
Autres pièces
Tubes en acier inox 304
Nombre d’utilisateurs
6
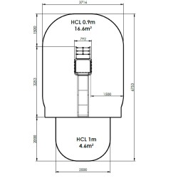
Espace minimum
6,76 m x 3,72 m
Tranche d'âge
de 3 ans et +
Les planchers
Inox lamé
Panneaux d'habillage
en Robinier
Hauteur de chute
1 m
Toboggan
1
Poids
110 kg
Dimensions de la structure ou du produit
3,26 x 0,80 m H1,78 m

Ensemble composé d'une tour avec un toboggan à glissière en INOX et d'une échelle de corde armée
Habillage de la tour en bois de robinier
chat Commentaires (0)