search
STRUCTURE de jeux CHATEAU 3 TOURS avec 1 Toboggan et 2 passerelles
Référence : CHF31201
Catégorie : Gamme Châteaux-forts

Structure en inox et habillage en panneaux PEHD

Garantie 25 ans

Métallerie et visserie 100% INOX

Fiche technique

Structure porteuse
acier inox 304
Autres pièces
Tubes en acier inox 304 ø42mm – Cordage armé ø16mm
Nombre d’utilisateurs
22
Espace minimum
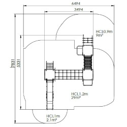
7,84 m x 6,50 m
Tranche d'âge
3 ans et +
Les planchers
Inox Lamé
Panneaux d'habillage
Panneaux PEHD
Hauteur de chute
1.20 m
Toboggan
1
Poids
411 kg
Dimensions de la structure ou du produit
5,34 x 3,50 m H3,27 m

Ensemble composé de 3 tours avec 2 hauteurs différentes reliées par un pont de corde et une passerelle rigide, d'un escalier, d'un mât de pompier, 
d'un filet de grimpe incliné, d'un mât de grimpe, d'une assise et d'un panneau de manipulation.
Structure porteuse avec des Poteaux inox RONDS Ø76.1mm
chat Commentaires (0)